Biệt thự đơn lập Vinhomes Cần Giờ là dòng sản phẩm cao cấp bậc nhất thuộc đại đô thị biển Vinhomes Green Paradise. Với số lượng giới hạn, pháp lý minh bạch và thuộc quỹ đất ven biển duy nhất của TP.HCM, biệt thự đơn lập không chỉ mang giá trị sống tinh tế mà còn là tài sản tích lũy bền vững cho tương lai.
Tổng quan biệt thự đơn lập Vinhomes Cần Giờ
Biệt thự đơn lập tại Vinhomes Green Paradise Cần Giờ được xây dựng và phân bố tại các phân khu như: Vịnh Tiên, Vịnh Ngọc, Mũi Danh Vọng và Đảo Mặt Trời,… Mỗi căn biệt thự đều được bao quanh bởi hồ nước mặn, công viên xanh và hệ tiện ích chuẩn quốc tế.

Thông tin cơ bản:
| Phân khu có biệt thự đơn lập | Thông tin chi tiết |
| Đơn lập phân khu Vịnh Tiên | Số lượng: khoảng 800 căn
Vị trí: nằm tại tiểu khu biệt thự đảo biệt lập, tiếp giáp với Biển hồ nước mặn Diện tích đất (dự kiến): từ 200 – 250m2 Pháp lý: sở hữu lâu dài hoặc 50 năm |
| Đơn lập phân khu Vịnh Ngọc | Số lượng: 700 căn
Vị trí: nằm tại tiểu khu biệt thự đảo biệt lập, tiếp giáp với Biển hồ nước mặn và một số nằm ven biển Diện tích đất: (dự kiến) 200 – 250m2 Pháp lý: sở hữu lâu dài hoặc 50 năm |
| Đơn lập phân khu Mũi Danh Vọng | Số lượng: khoảng 1000 căn
Vị trí: nằm trong khu bán đảo giáp biển hồ nước mặn, một số nằm ven biển và bến du thuyền Diện tích đất: đang cập nhật Thiết kế: đang cập nhật Pháp lý: đang cập nhật |
| Đơn lập phân khu Đảo Mặt Trời | Số lượng: 1800 căn
Vị trí: nằm trong khu bán đảo giáp biển hồ nước mặn, và giáp biển Diện tích đất: đang cập nhật Thiết kế: đang cập nhật Pháp lý: đang cập nhật |
Mặt bằng và thiết kế biệt thự đơn lập Vinhomes Cần Giờ
Biệt thự đơn lập là dòng sản phẩm cao cấp, hướng tới những khách hàng có tài chính tốt cùng nhu cầu sống cao. Vì vậy, đơn lập Vinhomes Green Paradise quy hoạch không gian sống biệt lập, tiện nghi và đậm chất nghỉ dưỡng giữa lòng đô thị.
Số lượng giới hạn chỉ khoảng 4300 căn trong tổng hơn 48.000 căn thấp tầng toàn khu, dòng đơn lập được quy hoạch tại các vị trí đẹp nhất: trước là hồ nước mặn, sau nhà là công viên xanh.
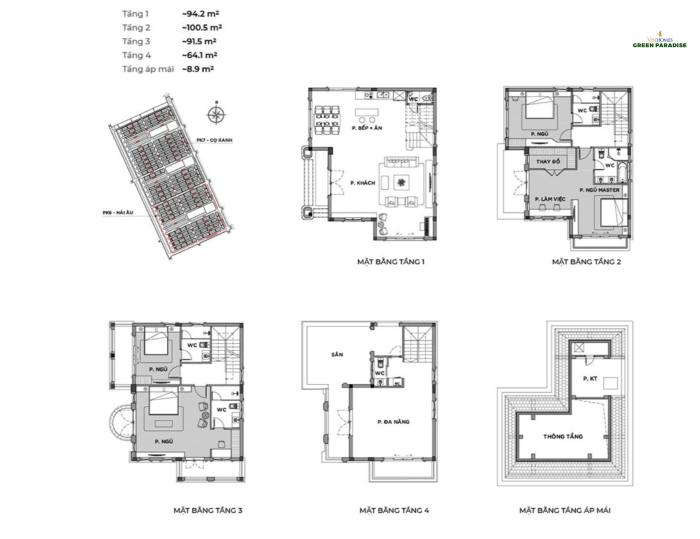
Diện tích đất mỗi căn dao động trong khoảng 200 – 300m², xây dựng tối đa 4,5 tầng. Thiết kế không gian mở giúp tối ưu thông thoáng, tăng tính kết nối với môi trường thiên nhiên xung quanh.
Kiến trúc biệt thự đơn lập đa dạng theo phong cách từng phân khu như: Đông Dương, Địa Trung Hải, Manhattan, Tân cổ điển châu Âu hoặc hiện đại tối giản.
Dù mang ngôn ngữ thiết kế nào, điểm chung vẫn là hình khối chắc chắn, phối màu trung tính sang trọng và đường nét mặt tiền thanh lịch, phù hợp với thị hiếu thẩm mỹ cao cấp.

Về công năng sử dụng, từng tầng được tổ chức linh hoạt và hiệu quả:
- Tầng trệt là khu vực tiếp khách và sinh hoạt chính, bố trí liền mạch giữa phòng khách – phòng ăn – bếp. Mỗi căn đều sở hữu mặt thoáng tối đa, từ 3 đến 4 mặt sân vườn, tạo không gian riêng tư và gần gũi thiên nhiên.
- Tầng 2 tập trung vào không gian nghỉ ngơi, với phòng ngủ master rộng rãi, tích hợp khu thay đồ và làm việc, đi kèm ban công lớn đón gió biển và ánh sáng tự nhiên.
- Tầng 3 có thể bố trí thêm phòng ngủ phụ, phòng học, phòng sinh hoạt chung hoặc phòng thư viện tùy nhu cầu gia đình.
- Tầng mái (tum) là không gian mở linh hoạt, phù hợp để bố trí vườn cây, khu BBQ ngoài trời hoặc khu vực thiền, thư giãn riêng.

Giá bán biệt thự đơn lập Vinhomes Green Paradise
Hiện tại, mức giá đơn lập Vinhomes Cần Giờ vẫn chưa được công bố từ phía chủ đầu tư. Tuy nhiên, với tiềm năng phát triển của dự án và quy hoạch bài bản, giá dự kiến cho mỗi căn biệt thự đơn lập có thể khởi điểm từ 50 tỷ/căn.
Ngay sau khi bảng hàng chính thức được phát hành, chúng tôi sẽ cập nhật để nhà đầu tư dễ dàng theo dõi và lựa chọn phương án phù hợp.
Lý do nên lựa chọn biệt thự đơn lập Vinhomes Cần Giờ
Đơn lập Vinhiomes Cần Giờ không chỉ cung cấp một ngôi nhà để ở mà còn là tài sản sở hữu lâu dài, vừa sống, nghỉ dưỡng và cũng để khai thác kinh doanh, đầu tư sinh lời.
Không gian sống chuẩn sinh thái, đẳng cấp giữa lòng đại đô thị
Khác với các khu dân cư truyền thống, biệt thự đơn lập Vinhomes Green Paradise được thiết kế theo triết lý “resort living” – sống giữa thiên nhiên nhưng tiện nghi như khách sạn 5 sao.
Mỗi căn biệt thự được bao quanh bởi 3–4 mặt thoáng, sân vườn riêng, tầm nhìn hướng biển hoặc hồ nước mặn, tạo cảm giác yên tĩnh, thanh lọc và gần gũi thiên nhiên.
Cảnh quan nội khu được quy hoạch đồng bộ với công viên sinh thái, quảng trường biển, hồ cảnh quan, bến du thuyền, cùng hệ tiện ích khép kín của Vincom, Vinmec,…
Với mật độ xây dựng thấp, cư dân tại đây vừa tận hưởng không gian sống an yên, vừa sở hữu đặc quyền riêng tư và đẳng cấp, hiếm có ngay tại một đô thị 10 triệu dân như TP.HCM.

Sản phẩm khan hiếm: Giá trị tích lũy vững bền theo thời gian
Biệt thự đơn lập Vinhomes Cần Giờ là dòng sản phẩm có tỷ lệ thấp nhất toàn dự án, chỉ khoảng 4.300 căn trên tổng hơn 48.000 sản phẩm thấp tầng, phân bổ tại các vị trí đắc địa như Vịnh Tiên, Vịnh Ngọc, Mũi Danh Vọng, Đảo Mặt Trời.
Trong bối cảnh TP.HCM gần như không còn quỹ đất ven biển mới, việc sở hữu một căn biệt thự đơn lập vừa có tính riêng tư, vừa tiếp giáp mặt nước, mang ý nghĩa tích sản lâu dài tương tự các khu biệt thự biển ở Đà Nẵng hay Nha Trang, nhưng nằm ngay trong địa giới TP.HCM.
Khả năng tăng giá của dòng sản phẩm hữu hạn này đến từ chính quy luật khan hiếm, khi nguồn cung không thể tái tạo, nhưng nhu cầu second home ven đô ngày càng tăng mạnh sau dịch.

Tiềm năng khai thác linh hoạt
Biệt thự đơn lập không chỉ là nơi để ở, mà còn là tài sản có thể vận hành thương mại hiệu quả. Với diện tích lớn, công năng linh hoạt, mặt tiền rộng và thiết kế độc lập, sản phẩm này hoàn toàn phù hợp để triển khai các mô hình như:
- Villa nghỉ dưỡng cho thuê theo ngày hoặc tuần trên các nền tảng như Airbnb, Luxstay.
- Second home cá nhân kết hợp khai thác cho thuê theo mùa.
- Kinh doanh lưu trú cao cấp dành cho khách du lịch sinh thái, khách đoàn, khách hội nghị khi Cần Giờ hình thành hệ sinh thái du lịch biển đúng quy hoạch.
Khác với các dòng đầu tư phụ thuộc vào lãi vốn, biệt thự đơn lập có thể sinh lời theo cả hai hướng: vừa tăng giá trị tài sản theo thời gian, vừa tạo dòng tiền đều đặn từ khai thác vận hành.
Đây là mô hình đầu tư kép ngày càng được giới đầu tư chuyên nghiệp ưu tiên, đặc biệt khi dự án sở hữu hệ tiện ích đủ hấp dẫn để giữ chân khách dài ngày.
Với vị trí ven biển duy nhất tại TP.HCM, thiết kế biệt lập giữa hệ sinh thái sinh thái tự nhiên, cùng tiềm năng tăng giá mạnh nhờ hạ tầng đang triển khai, biệt thự đơn lập Vinhomes Cần Giờ là lựa chọn lý tưởng cho cả an cư lẫn đầu tư. Trong bối cảnh thị trường bất động sản đang tái cấu trúc theo hướng chọn lọc, việc sở hữu một căn biệt thự đơn lập tại dự án là bước đi chiến lược, đón đầu tương lai.
Quý khách hàng và nhà đầu tư quan tâm đến dự án, vui lòng liên hệ tới phòng Kinh doanh của chúng tôi qua hotline: 0903 696 333 để được tư vấn và hỗ trợ chi tiết về bảng hàng và giá bán chính xác nhất.
Xem thêm >>> Biệt thự Vinhomes Green Paradise Cần Giờ: Quỹ căn đợt 1
