Đôi nét về dự án Lumiere Essence Peak Cổ Loa
Lumiere Essence Peak là dự án gồm 2 tòa tháp cao 45 tầng được xây dựng trên khu đất rộng 15.130m2 với mật độ xây dựng chỉ 20%, dành tới 80% diện tích cho hệ thống tiện ích và không gian xanh nhằm kiến tạo môi trường sống cân bằng cho cư dân. Dự án bao gồm 2 tòa Peak 1 và Peak 2, cung cấp tổng cộng 1.640 căn hộ đa dạng loại hình từ Studio, 1-4 phòng ngủ (có option thang máy riêng) đến các dòng sản phẩm cao cấp như Penthouse, Duplex và Penthouse Duplex.
- Vị trí: Phân khu Tinh Hoa, Vinhomes Global Gate, Cổ Loa, Hà Nội
- Chủ đầu tư: Masterise Homes
- Quy mô: 2 tòa tháp 45 tầng + 3 tầng hầm
- Diện tích khu đất: 1.51ha
- Đặc điểm nổi bật:
- 02 Penthouse President có thang máy riêng tiêu chuẩn LOP
- Tiêu chuẩn bàn giao: Nội thất cao cấp Lumiere+
- Pháp lý: Sổ đỏ lâu dài (người Việt), 50 năm (người nước ngoài)
Dự án được thiết kế tối ưu khi chỉ tập trung phát triển không gian sống xanh và hệ tiện ích đẳng cấp, hứa hẹn sẽ trở thành biểu tượng sống thượng lưu tại phía Đông Bắc Hà Nội.

=>> Xem thêm: Masterise Homes ra mắt chung cư Lumiere Essence Peak tại Vinhomes Cổ Loa
Mặt bằng chung cư Lumiere Essence Peak Cổ Loa Đông Anh
Mặt bằng Lumiere Essence Peak Cổ Loa được xây dựng bởi cảm hứng từ hoa sen điểm với kiến trúc hiện đại và đường cong mềm. Dự án được phát triển với 7 loại hình căn hộ cơ bản, được thiết kế tối ưu để mang lại không gian sống rộng rãi, thoáng đãng với 100% ban công kính hoặc kính Low-E kịch trần.
So với các dự án cùng khu đô thị như Masteri Grand Avenue và Lumiere Prime Hills, Lumiere Essence Peak Cổ Loa nổi bật với thiết kế rộng rãi hơn, tận dụng tối đa ánh sáng tự nhiên và tầm nhìn toàn cảnh, mang đến trải nghiệm sống đẳng cấp và tiện nghi cho cư dân.

Đặc điểm thiết kế nổi bật:
- Ban công kính: Tất cả các căn hộ đều được thiết kế với ban công kính hoặc kính Low-E, giúp tối ưu hóa ánh sáng và tầm nhìn.
- Không gian mở: Thiết kế mở, kết nối liền mạch giữa các phòng, tạo cảm giác rộng rãi và thoáng đãng.
- Tiện ích cao cấp: Hệ thống tiện ích đẳng cấp, từ thang máy riêng đến các khu vực sinh hoạt chung được thiết kế tinh tế.
Song sức hút lớn nhất của Lumiere Đông Anh phải kể đến tầm nhìn panorama “siêu đẳng cấp” nhờ vị trí trung tâm Vinhomes Global Gate. Tại đây, 30% căn hộ có thể bao quát toàn cảnh hồ Thiên Nga, được xem là những căn hộ đắt giá bậc nhất Essence Peak với 70% căn hộ hướng ra bên ngoài, có thể nhìn được toàn cảnh khu đô thị.
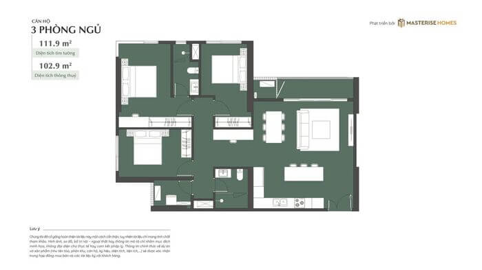
Mặt bằng tầng và thiết kế căn hộ tại chung cư
Điểm nhấn của căn hộ Lumiere Cổ Loa còn đến từ kiến trúc hình chữ Y tăng số lượng căn góc lên tới 6 căn hộ/mặt sàn + diện tích tiếp xúc ánh sáng & gió trời lên tới tối đa, kể cả căn hộ thông thường. Chưa kể, nhằm đáp ứng tiêu chuẩn sống của một số khách hàng VIP, chủ đầu tư còn thiết kế căn hộ 3PN-lift với thang máy riêng tới tận cửa với số lượng giới hạn.

Chi tiết diện tích từng loại hình căn hộ:
- Studio: 33.5 – 37.3m2
- 1PN+1: 47.6 – 49.9m2
- 2PN: 66.1 – 74.6m2
- 3PN: 112m2 – kèm sảnh chờ và thang máy riêng




Mặt bằng tiện ích chung cư Lumiere Essence Peak
Dòng căn hộ Lumiere hướng đến phân khúc cao cấp với thiết kế tinh tế, trong đó có hệ thống tiện ích ngoài trời và trong nhà đồng bộ, đáp ứng đủ nhu cầu của cư dân tinh hoa:
- Sảnh tiếp đón sang trọng với lễ tân và bảo vệ chuyên nghiệp
- Phòng để đồ riêng cho cư dân
- Thư viện và khu vui chơi trong nhà dành cho trẻ em
- Business Lounge phục vụ nhu cầu làm việc
- Bể bơi 4 mùa trong nhà
- Phòng tập Gym và Yoga hiện đại
- Bể bơi ngoài trời
- Sân thể thao đa năng với Tennis, Pickleball, bóng rổ và công viên
Hai tòa chung cư Lumiere Essence Peak Cổ Loa nổi bật với vị trí gần hồ Thiên Nga rộng 32ha, giúp cư dân dễ dàng đi bộ, chạy bộ, hoặc tập thể dục quanh hồ. Bên cạnh các tiện ích trong tòa nhà còn có những dãy phố thương mại dịch vụ Hoàng Hôn sầm uất với nhiều quán ăn và khu mua sắm vô cùng tiện lợi.

=>> Xem thêm: Tòa Peak 1 Lumiere Essence Peak Cổ Loa: Chính thức CĐT
Mặt bằng Lumiere Essence Peak Cổ Loa được lòng khách hàng và các nhà đầu tư bởi thiết kế tinh xảo và tối ưu từng mét vuông trong không gian sống. Quý khách quan tâm đến các thông tin chính thức từ chủ đầu tư về dự án chung cư Masteri Cổ Loa, vui lòng liên hệ hotline: 0903 696 333 để nhận tư vấn chi tiết và hỗ trợ.
ĐĂNG KÝ NHẬN TƯ VẤN MIỄN PHÍ
ĐĂNG KÝ
