Tòa Alumi Premium 2 là một trong những tòa căn hộ nổi bật thuộc phân khu Alluvia Onsen – phân khu đầu tiên được mở bán tại khu đô thị Alluvia City. Sở hữu vị trí chiến lược, thiết kế hiện đại cùng hệ thống tiện ích đồng bộ, tòa Alumi Premium 2 được kỳ vọng sẽ trở thành lựa chọn an cư và đầu tư hấp dẫn trong giai đoạn tới.
Tổng quan tòa Alumi Premium 2
Alumi Premium 2 được quy hoạch với quy mô 39 tầng nổi và 3 tầng hầm, đảm bảo đầy đủ công năng sử dụng cũng như tối ưu trải nghiệm sống cho cư dân.
- Chiều cao: 39 tầng
- Tầng hầm: 3 tầng hầm để xe
- Tổng số căn hộ: 782 căn
- Mật độ căn hộ: 23 căn hộ/mặt sàn
- Hệ thống thang máy: 12 thang máy thường và 1 thang hàng
Phân bổ công năng các tầng
- Tầng 1 – 2: Sảnh đón cư dân và khu shophouse
- Tầng 3: Không gian tiện ích trong nhà
- Tầng 4 – 19: Căn hộ cơ bản
- Tầng 20 – 20A: Gian lánh nạn, vườn trên không và căn hộ Duplex
- Tầng 21 – 37: Căn hộ cơ bản
- Tầng 38 – 39: Căn hộ Penthouse
Với cách bố trí khoa học, tòa Alumi Premium 2 vừa đảm bảo yếu tố an toàn, vừa tạo ra các khoảng không gian sinh hoạt và nghỉ ngơi chất lượng cho cư dân ở mọi tầng cao.

>> Xem thêm: Bán căn hộ Alumi Premium 3: Mặt bằng, CSHB mới nhất dự án Alluvia City
Loại hình và diện tích căn hộ Alluvia City
Tòa Alumi Premium 2 mang đến sự đa dạng về loại hình căn hộ, phù hợp với nhiều nhóm khách hàng khác nhau, từ người độc thân, gia đình trẻ cho đến gia đình nhiều thế hệ và giới thượng lưu.
- Loại hình căn hộ: Studio, 1PN+1, 2PN, 3PN, Duplex, Penthouse
- Diện tích căn hộ: Từ 38.2 m² đến 280.7 m²
- Tiêu chuẩn bàn giao: Liền tường
- Thời điểm bàn giao dự kiến: Tháng 12/2028
Sự đa dạng về diện tích và công năng giúp tòa Alumi Premium 2 đáp ứng linh hoạt nhu cầu an cư, đầu tư cho thuê hoặc tích sản lâu dài.
CHÍNH SÁCH BÁN HÀNG DỰ ÁN
TẢI CHÍNH SÁCH
Vị trí đắc địa của tòa Alumi Premium 2
Tòa Alumi Premium 2 tọa lạc tại điểm giao giữa dự án Alumi và tiểu khu 2 Alluvia Onsen, thuộc góc phía Đông của khu Alumi. Đây là vị trí được đánh giá cao khi nằm trên trục giao thông chính cắt ngang toàn bộ phân khu Alluvia Onsen.
Nhờ lợi thế tiếp giáp trực tiếp với đường Di Sản và vành đai 3.5, cư dân tại tòa Alumi Premium 2 có thể dễ dàng kết nối đến các khu vực trung tâm cũng như các tuyến giao thông trọng điểm, giúp việc di chuyển nội khu và ngoại khu trở nên thuận tiện.
Ranh giới tiếp giáp của Alumi Premium 2
- Phía Đông Bắc: Tiếp giáp shophouse tiểu khu 2
- Phía Đông Nam: Tiếp giáp công viên trung tâm
- Phía Tây Nam: Tiếp giáp tòa Alumi Premium 4
- Phía Tây Bắc: Tiếp giáp tòa Alumi Premium 1
Với vị trí trung tâm phân khu, cư dân tòa Alumi Premium 2 được thừa hưởng trọn vẹn hệ thống tiện ích đẳng cấp của Alluvia Onsen như tổ hợp khoáng nóng Onsen, trường học liên cấp quốc tế, công viên trung tâm, hồ cảnh quan và sông sinh thái. Tất cả đều nằm trong khoảng cách di chuyển ngắn, mang đến chất lượng sống xanh, thư thái và tiện nghi.

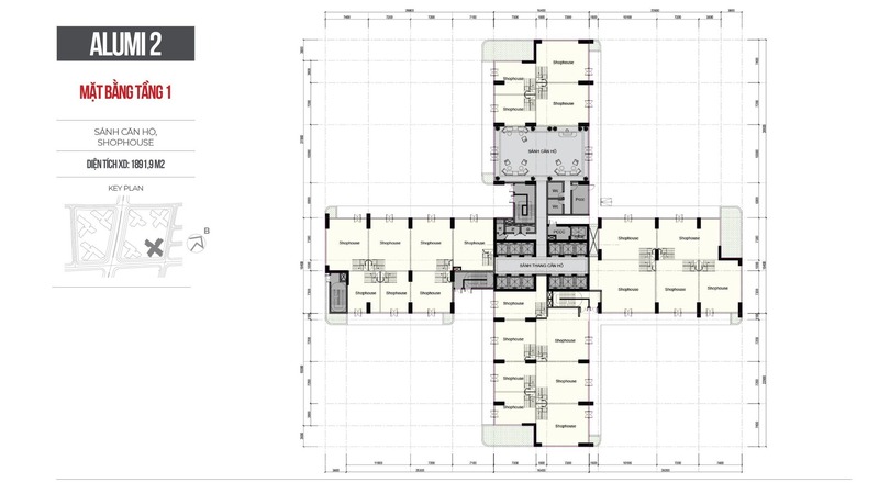
Mặt bằng tòa Alumi Premium 2
Mặt bằng tòa Alumi Premium 2 được thiết kế tối ưu với mật độ 23 căn hộ mỗi mặt sàn, đảm bảo sự riêng tư và thông thoáng. Hệ thống hành lang rộng rãi, thang máy bố trí hợp lý giúp giảm thiểu thời gian chờ đợi và nâng cao trải nghiệm sinh hoạt hàng ngày cho cư dân.
Các căn hộ được thiết kế chú trọng đến ánh sáng tự nhiên, khả năng thông gió và tầm nhìn mở ra công viên trung tâm, cảnh quan nội khu và sông sinh thái, tạo nên không gian sống thoáng đãng, dễ chịu.




Giá bán và ưu đãi của dự án Alumi
Giá bán căn hộ tại Alumi Premium 2 dự án Alluvia Văn Giang, Hưng Yên được đánh giá phù hợp với phân khúc cao cấp, tương xứng với vị trí, tiện ích và chất lượng bàn giao.
| Loại hình căn hộ | Diện tích tim tường | Diện tích thông thủy | Giá bán dự kiến |
| Căn hộ Studio | 38.2 m² | 34.38 m² | 2.2 – 2.6 tỷ |
| Căn hộ 1PN+1 | 55.2 m² | 49.68 m² | 3.5 – 3.8 tỷ |
| Căn hộ 2PN | 82.9 m² | 74.61 m² | 5.1 – 5.6 tỷ |
| Căn hộ 3PN | 127.7 m² | 114.93 m² | 7.8 – 8.5 tỷ |
| Căn hộ Duplex | 93.8 – 225.9 m² | Đang cập nhật | Đang cập nhật |
| Căn hộ Penthouse | 170 – 280.7 m² | Đang cập nhật | Đang cập nhật |
Mức giá trên mang tính tham khảo và có thể thay đổi theo từng thời điểm, chính sách bán hàng và vị trí căn cụ thể.
Với lợi thế vị trí trung tâm phân khu, hệ thống tiện ích khoáng nóng đặc trưng và đa dạng loại hình căn hộ, tòa Alumi Premium 2 không chỉ là nơi an cư lý tưởng mà còn sở hữu tiềm năng tăng giá bền vững trong tương lai. Đặc biệt, nhu cầu sống xanh, chăm sóc sức khỏe và nghỉ dưỡng tại chỗ ngày càng gia tăng càng giúp gia tăng giá trị cho dự án. Quý khách hàng và nhà đầu tư có thể liên hệ tới phòng Kinh doanh của chúng tôi qua hotline: 0903 696 333 để được tư vấn về bảng hàng, giá bán và thủ tục booking mới nhất.
>> Xem thêm: Tòa Alumi Premium 1: Mặt bằng, quỹ căn và giá bán
ĐĂNG KÝ NHẬN TƯ VẤN MIỄN PHÍ
ĐĂNG KÝ
